takeofficeなら掲載物件の仲介手数料は無料です

デンス河野

住所 東京都世田谷区若林1-8-8
交通 世田谷線西太子堂」 徒歩6分
田園都市線三軒茶屋」 徒歩10分
竣工 1989年11月 構造 SRC
規模 地上10階, 地下1階 耐震基準 新耐震基準
床構造 - 空調設備 -
天井高 - 基準階面積 --
コンセント容量 - 施工会社

最新の募集状況や類似物件については、
こちらにお問い合わせください。

NOW PRINTING

外観

  • NOW PRINTING

    エントランス

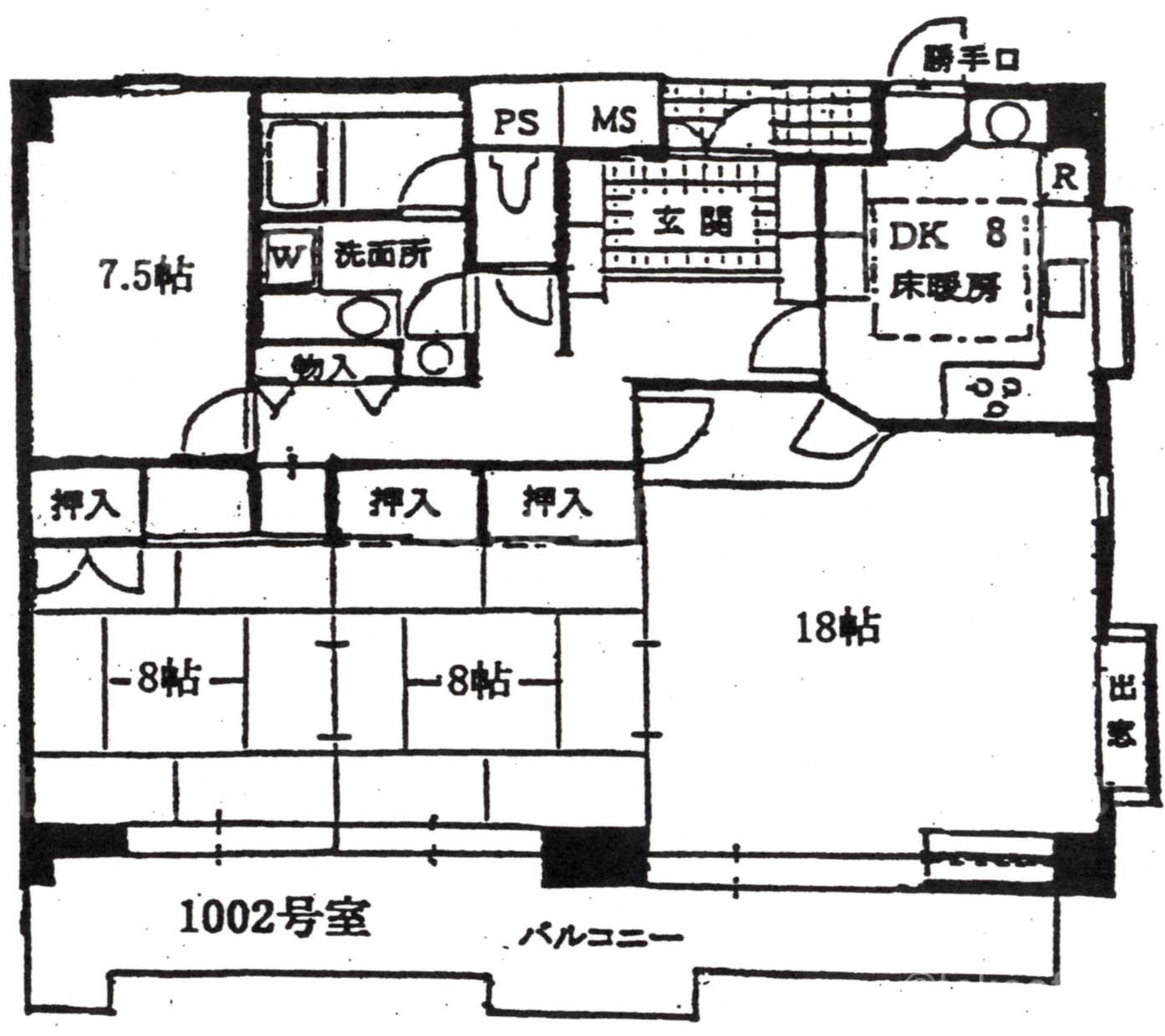
  • 1002号室

    1002号室

内見やお見積りなどの各種お問い合わせ

全物件
仲介手数料無料
仲介から
入居工事まで
ワンストップで対応
経験豊富なスタッフが
スピード感をもって
対応

周辺での似た条件の物件

非公開物件 多数あり!

お問い合わせフォーム