takeofficeなら掲載物件の仲介手数料は無料です

あいおいニッセイ同和損保明大前ビル(旧あいおい損保高井戸ビル

住所 東京都世田谷区松原2-37-15
交通 京王線明大前」 徒歩5分
京王線下高井戸」 徒歩9分
世田谷線下高井戸」 徒歩9分
竣工 1986年12月 構造 -
規模 地上6階, 地下0階 耐震基準 新耐震基準
床構造 - 空調設備 個別空調
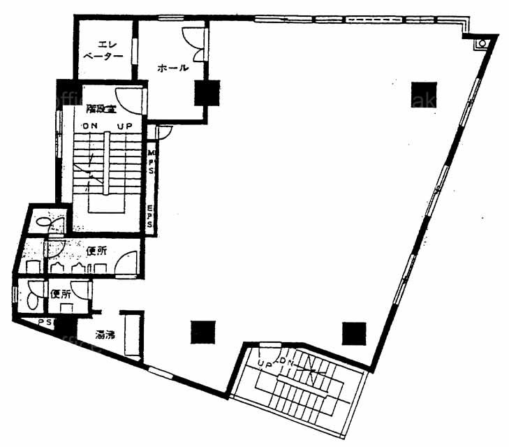
天井高 - 基準階面積 33.04坪(109.22m2)
コンセント容量 - 施工会社

最新の募集状況や類似物件については、
こちらにお問い合わせください。

あいおいニッセイ同和損保明大前ビル(旧あいおい損保高井戸ビル 外観

外観

  • NOW PRINTING

    エントランス

  • 基準階(4~6F)

    基準階(4~6F)

内見やお見積りなどの各種お問い合わせ

全物件
仲介手数料無料
仲介から
入居工事まで
ワンストップで対応
経験豊富なスタッフが
スピード感をもって
対応

周辺での似た条件の物件

非公開物件 多数あり!

お問い合わせフォーム