takeofficeなら掲載物件の仲介手数料は無料です

マーベラス経堂

住所 東京都世田谷区経堂5-32-8
交通 小田急線経堂」 徒歩7分
竣工 1977年07月 構造 RC
規模 地上5階, 地下1階 耐震基準 旧耐震基準
床構造 フリーアクセス 空調設備 個別空調
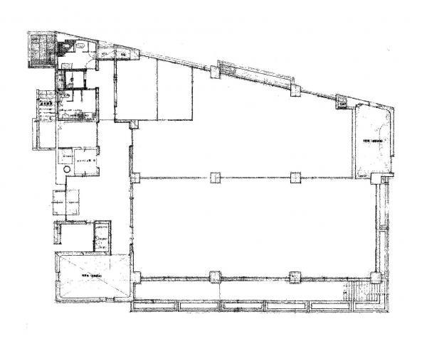
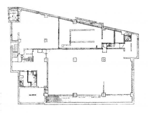
天井高 2400mm 基準階面積 114.05坪(377.02m2)
コンセント容量 - 施工会社

最新の募集状況や類似物件については、
こちらにお問い合わせください。

マーベラス経堂 外観

外観

  • NOW PRINTING

    エントランス

  • 2F

    2F

  • 1F

    1F

  • 3F

    3F

  • 4F

    4F

  • 5F

    5F

  • B1F

    B1F

  • 4F

    4F

内見やお見積りなどの各種お問い合わせ

全物件
仲介手数料無料
仲介から
入居工事まで
ワンストップで対応
経験豊富なスタッフが
スピード感をもって
対応

周辺での似た条件の物件

非公開物件 多数あり!

お問い合わせフォーム