takeofficeなら掲載物件の仲介手数料は無料です

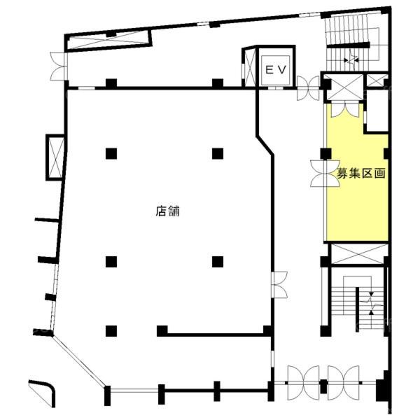
下北沢ビッグベン

住所 東京都世田谷区北沢2-5-2
交通 井の頭線下北沢」 徒歩3分
竣工 1969年03月 構造 RC
規模 地上5階, 地下2階 耐震基準 旧耐震基準
床構造 - 空調設備 -
天井高 - 基準階面積 --
コンセント容量 - 施工会社

最新の募集状況や類似物件については、
こちらにお問い合わせください。

下北沢ビッグベン 外観

外観

内見やお見積りなどの各種お問い合わせ

全物件
仲介手数料無料
仲介から
入居工事まで
ワンストップで対応
経験豊富なスタッフが
スピード感をもって
対応

周辺での似た条件の物件

非公開物件 多数あり!

お問い合わせフォーム