takeofficeなら掲載物件の仲介手数料は無料です

ダイアカラービル

住所 東京都世田谷区経堂5-38-23
交通 小田急線経堂」 徒歩9分
小田急線千歳船橋」 徒歩9分
竣工 1994年07月 構造 RC
規模 地上4階 耐震基準 新耐震基準
床構造 - 空調設備 個別空調
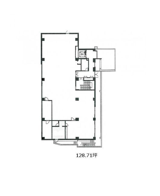
天井高 2700mm 基準階面積 --
コンセント容量 - 施工会社

最新の募集状況や類似物件については、
こちらにお問い合わせください。

NOW PRINTING

外観

  • NOW PRINTING

    エントランス

内見やお見積りなどの各種お問い合わせ

全物件
仲介手数料無料
仲介から
入居工事まで
ワンストップで対応
経験豊富なスタッフが
スピード感をもって
対応

周辺での似た条件の物件

非公開物件 多数あり!

お問い合わせフォーム