takeofficeなら掲載物件の仲介手数料は無料です

駒沢エイトビル

住所 東京都世田谷区駒沢4-23-18
交通 田園都市線駒沢大学」 徒歩8分
田園都市線桜新町」 徒歩10分
竣工 1991年06月 構造 鉄骨造
規模 地上8階 耐震基準 新耐震基準
床構造 - 空調設備 個別空調
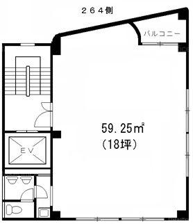
天井高 - 基準階面積 17.92坪(59.25m2)
コンセント容量 - 施工会社

最新の募集状況や類似物件については、
こちらにお問い合わせください。

駒沢エイトビル 外観

外観

  • NOW PRINTING

    エントランス

  • 基準階

    基準階

内見やお見積りなどの各種お問い合わせ

全物件
仲介手数料無料
仲介から
入居工事まで
ワンストップで対応
経験豊富なスタッフが
スピード感をもって
対応

周辺での似た条件の物件

非公開物件 多数あり!

お問い合わせフォーム