takeofficeなら掲載物件の仲介手数料は無料です

424桜丘ビル(旧:日商岩井世田谷ビル)

住所 東京都世田谷区桜丘4-24-16
交通 小田急線千歳船橋」 徒歩13分
小田急線祖師ヶ谷大蔵」 徒歩15分
小田急線経堂」 徒歩29分
竣工 1991年03月 構造 RC
規模 地上5階, 地下1階 耐震基準 新耐震基準
床構造 - 空調設備 個別空調
天井高 2600mm 基準階面積 --
コンセント容量 - 施工会社

最新の募集状況や類似物件については、
こちらにお問い合わせください。

424桜丘ビル(旧:日商岩井世田谷ビル) 外観

外観

  • NOW PRINTING

    エントランス

  • 2F

    2F

  • 1F

    1F

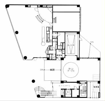
  • 3F

    3F

  • 4f

    4f

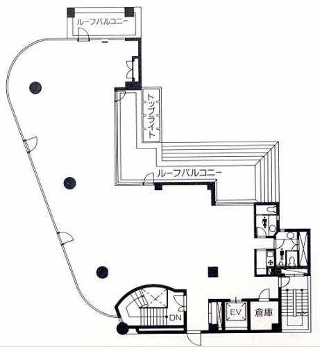
  • 5F

    5F

内見やお見積りなどの各種お問い合わせ

全物件
仲介手数料無料
仲介から
入居工事まで
ワンストップで対応
経験豊富なスタッフが
スピード感をもって
対応

周辺での似た条件の物件

非公開物件 多数あり!

お問い合わせフォーム