takeofficeなら掲載物件の仲介手数料は無料です

尾山台232ビル

住所 東京都世田谷区尾山台2-32-15
交通 大井町線尾山台」 徒歩5分
竣工 1982年01月 構造 -
規模 地上3階, 地下0階 耐震基準 -
床構造 - 空調設備 個別空調
天井高 2300mm 基準階面積 --
コンセント容量 - 施工会社

最新の募集状況や類似物件については、
こちらにお問い合わせください。

NOW PRINTING

外観

  • NOW PRINTING

    エントランス

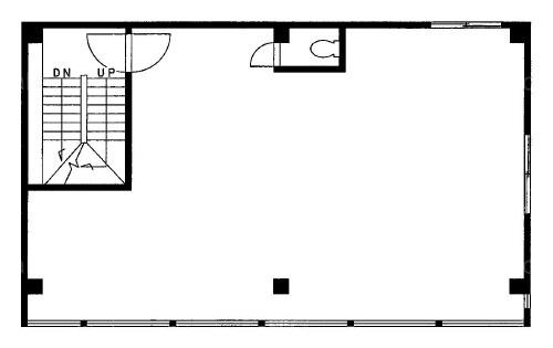
  • 2F

    2F

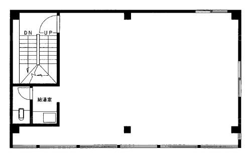
  • 1F

    1F

  • 3F

    3F

内見やお見積りなどの各種お問い合わせ

全物件
仲介手数料無料
仲介から
入居工事まで
ワンストップで対応
経験豊富なスタッフが
スピード感をもって
対応

周辺での似た条件の物件

非公開物件 多数あり!

お問い合わせフォーム