takeofficeなら掲載物件の仲介手数料は無料です

KDX恵比寿ビル(旧:恵比寿イースト438ビル)

住所 東京都渋谷区恵比寿4-3-8
交通 JR山手線恵比寿」 徒歩1分
東京メトロ日比谷線恵比寿」 徒歩1分
竣工 1992年11月 構造 SRC
規模 地上7階, 地下1階 耐震基準 新耐震基準
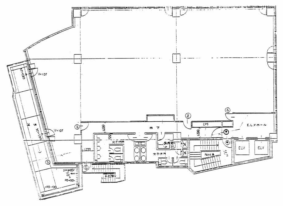
床構造 フリーアクセス 50mm 空調設備 個別空調
天井高 2500mm 基準階面積 154.82坪(511.8m2)
コンセント容量 50VA/m2 施工会社

最新の募集状況や類似物件については、
こちらにお問い合わせください。

KDX恵比寿ビル(旧:恵比寿イースト438ビル) 外観

外観

  • KDX恵比寿ビル(旧:恵比寿イースト438ビル) エントランス写真

    エントランス

  • 基準階

    基準階

  • 1F

    1F

  • 2F

    2F

  • 6F

    6F

  • 7F

    7F

内見やお見積りなどの各種お問い合わせ

全物件
仲介手数料無料
仲介から
入居工事まで
ワンストップで対応
経験豊富なスタッフが
スピード感をもって
対応

周辺での似た条件の物件

非公開物件 多数あり!

お問い合わせフォーム