takeofficeなら掲載物件の仲介手数料は無料です

宝ビルディング

住所 東京都渋谷区広尾5-25-4
交通 東京メトロ日比谷線広尾」 徒歩7分
JR山手線恵比寿」 徒歩14分
東京メトロ南北線白金台」 徒歩18分
竣工 1966年08月 構造 RC
規模 地上6階, 地下0階 耐震基準 旧耐震基準
床構造 フリーアクセス 50mm 空調設備 個別空調
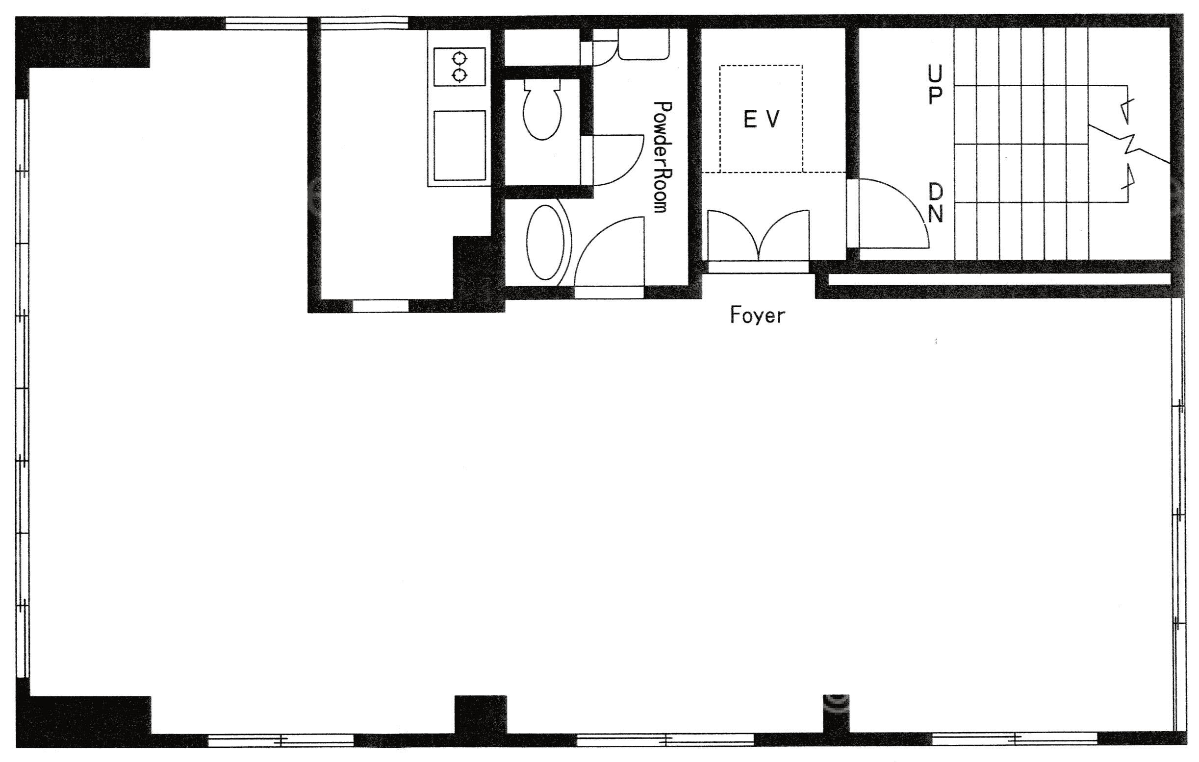
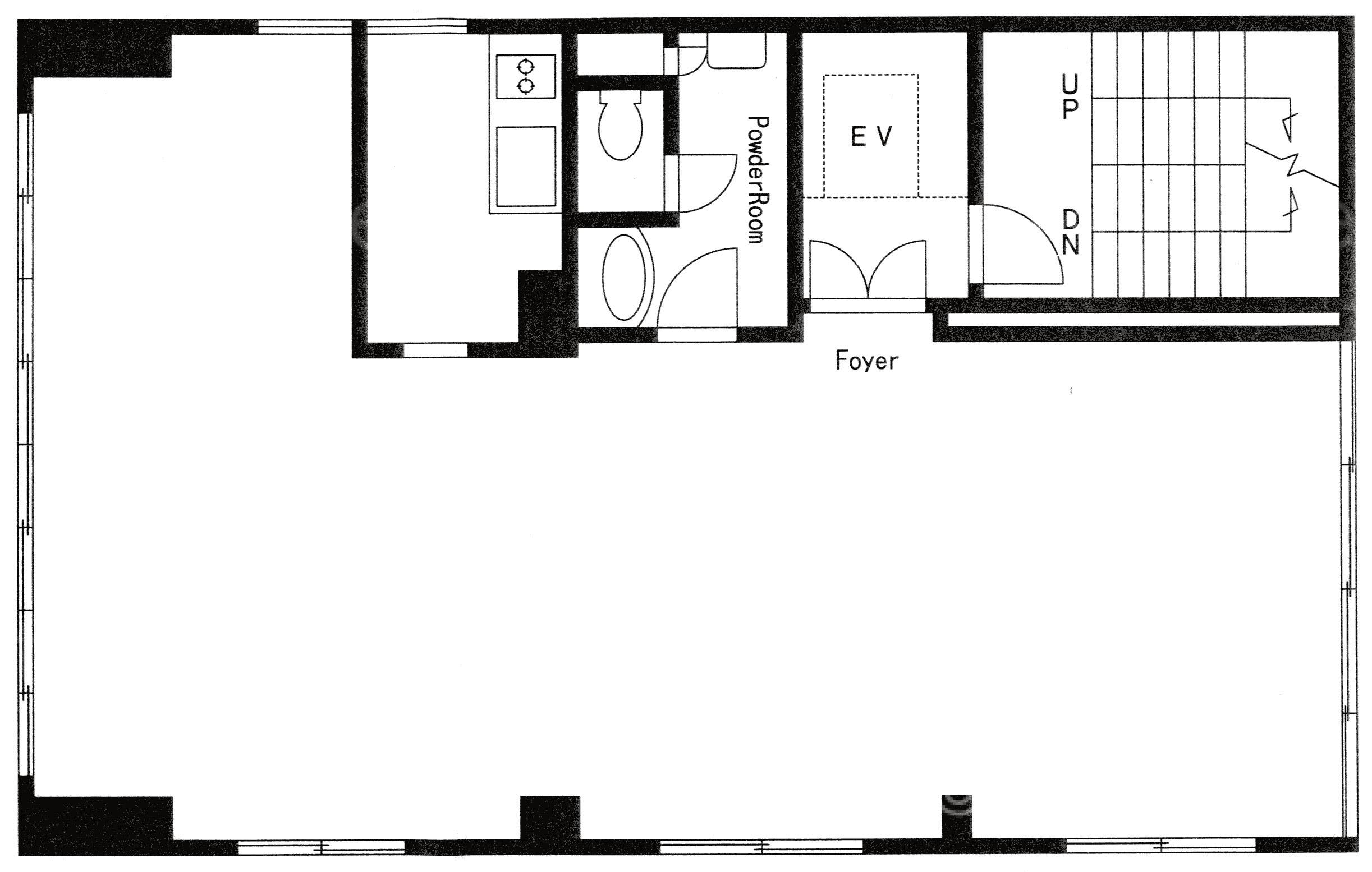
天井高 - 基準階面積 32.53坪(107.54m2)
コンセント容量 - 施工会社

最新の募集状況や類似物件については、
こちらにお問い合わせください。

宝ビルディング 外観

外観

  • 宝ビルディング エントランス写真

    エントランス

  • 3F4F

    3F4F

  • 5F

    5F

内見やお見積りなどの各種お問い合わせ

全物件
仲介手数料無料
仲介から
入居工事まで
ワンストップで対応
経験豊富なスタッフが
スピード感をもって
対応

周辺での似た条件の物件

非公開物件 多数あり!

お問い合わせフォーム