takeofficeなら掲載物件の仲介手数料は無料です

京王恵比寿ビル

住所 東京都渋谷区東3-22-13
交通 JR山手線恵比寿」 徒歩5分
竣工 1990年02月 構造 SRC
規模 地上7階 耐震基準 新耐震基準
床構造 フリーアクセス 空調設備 個別空調
天井高 2700mm 基準階面積 72.64坪(240.13m2)
コンセント容量 - 施工会社

最新の募集状況や類似物件については、
こちらにお問い合わせください。

京王恵比寿ビル 外観

外観

  • 京王恵比寿ビル エントランス写真

    エントランス

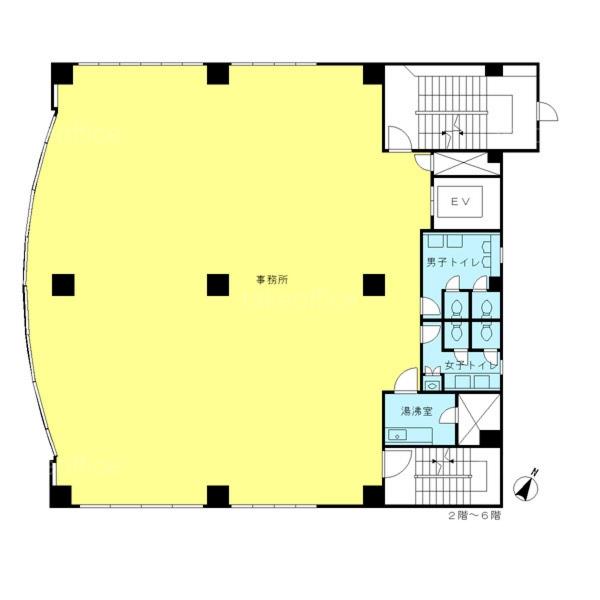
  • 基準階

    基準階

  • 7F

    7F

内見やお見積りなどの各種お問い合わせ

全物件
仲介手数料無料
仲介から
入居工事まで
ワンストップで対応
経験豊富なスタッフが
スピード感をもって
対応

周辺での似た条件の物件

非公開物件 多数あり!

お問い合わせフォーム