takeofficeなら掲載物件の仲介手数料は無料です

ワイマッツ広尾

住所 東京都渋谷区広尾3-12-36
交通 JR山手線恵比寿」 徒歩10分
竣工 2009年04月 構造 鉄骨造+SRC
規模 地上6階, 地下1階 耐震基準 新耐震基準
床構造 フリーアクセス 100mm 空調設備 個別空調
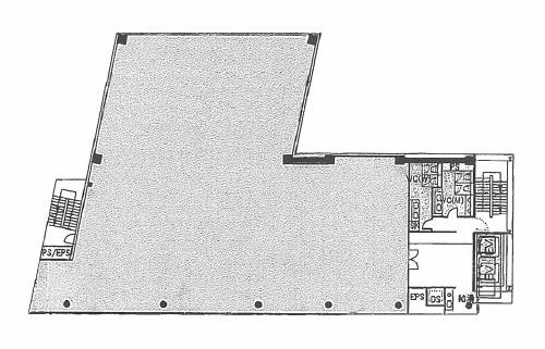
天井高 2700mm 基準階面積 160.93坪(532m2)
コンセント容量 60VA/m2 施工会社

最新の募集状況や類似物件については、
こちらにお問い合わせください。

ワイマッツ広尾 外観

外観

内見やお見積りなどの各種お問い合わせ

全物件
仲介手数料無料
仲介から
入居工事まで
ワンストップで対応
経験豊富なスタッフが
スピード感をもって
対応

周辺での似た条件の物件

非公開物件 多数あり!

お問い合わせフォーム