takeofficeなら掲載物件の仲介手数料は無料です

TQ恵比寿

住所 東京都渋谷区恵比寿2-6-26
交通 JR山手線恵比寿」 徒歩8分
東京メトロ日比谷線広尾」 徒歩10分
竣工 2011年03月 構造 RC
規模 地上4階, 地下1階 耐震基準 新耐震基準
床構造 - 空調設備 個別空調
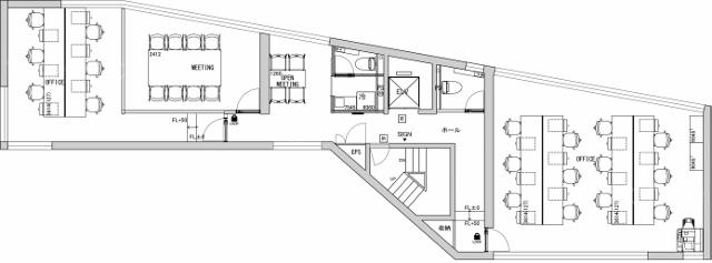
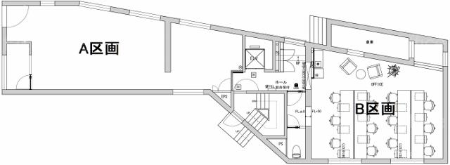
天井高 - 基準階面積 31.41坪(103.83m2)
コンセント容量 - 施工会社

最新の募集状況や類似物件については、
こちらにお問い合わせください。

TQ恵比寿 外観

外観

内見やお見積りなどの各種お問い合わせ

全物件
仲介手数料無料
仲介から
入居工事まで
ワンストップで対応
経験豊富なスタッフが
スピード感をもって
対応

周辺での似た条件の物件

非公開物件 多数あり!

お問い合わせフォーム