takeofficeなら掲載物件の仲介手数料は無料です

渋谷THビル

住所 東京都渋谷区東2-24-3
交通 JR山手線恵比寿」 徒歩9分
JR山手線渋谷」 徒歩10分
東横線代官山」 徒歩10分
竣工 2005年06月 構造 RC
規模 地上8階, 地下1階 耐震基準 新耐震基準
床構造 フリーアクセス 50mm 空調設備 個別空調
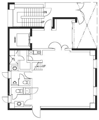
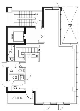
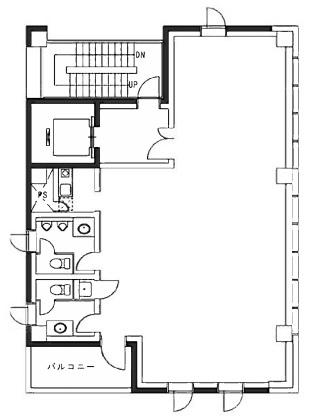
天井高 2500mm 基準階面積 33.62坪(111.14m2)
コンセント容量 - 施工会社 清水建設

最新の募集状況や類似物件については、
こちらにお問い合わせください。

渋谷THビル 外観

外観

内見やお見積りなどの各種お問い合わせ

全物件
仲介手数料無料
仲介から
入居工事まで
ワンストップで対応
経験豊富なスタッフが
スピード感をもって
対応

周辺での似た条件の物件

非公開物件 多数あり!

お問い合わせフォーム