takeofficeなら掲載物件の仲介手数料は無料です

iD EBISU

住所 東京都渋谷区東3-17-15
交通 JR山手線恵比寿」 徒歩4分
東横線代官山」 徒歩10分
JR山手線渋谷」 徒歩12分
竣工 2021年05月 構造 RC
規模 地上6階 耐震基準 新耐震基準
床構造 フリーアクセス 空調設備 個別空調
天井高 - 基準階面積 27.32坪(90.31m2)
コンセント容量 - 施工会社

最新の募集状況や類似物件については、
こちらにお問い合わせください。

iD EBISU 外観

外観

  • NOW PRINTING

    エントランス

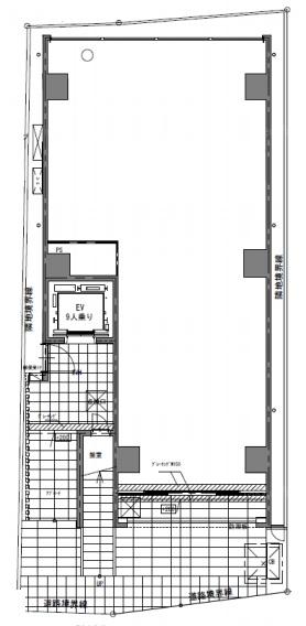
  • 基準階(4~6F)

    基準階(4~6F)

  • 1F

    1F

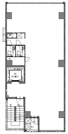
  • 2~3F

    2~3F

内見やお見積りなどの各種お問い合わせ

全物件
仲介手数料無料
仲介から
入居工事まで
ワンストップで対応
経験豊富なスタッフが
スピード感をもって
対応

周辺での似た条件の物件

非公開物件 多数あり!

お問い合わせフォーム