takeofficeなら掲載物件の仲介手数料は無料です

恵比寿オークビレッジビル

住所 東京都渋谷区恵比寿西2-3-12
交通 JR山手線恵比寿」 徒歩5分
東京メトロ日比谷線恵比寿」 徒歩5分
東横線代官山」 徒歩7分
竣工 2001年04月 構造 SRC
規模 地上8階 耐震基準 新耐震基準
床構造 フリーアクセス 100mm 空調設備 個別空調
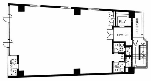
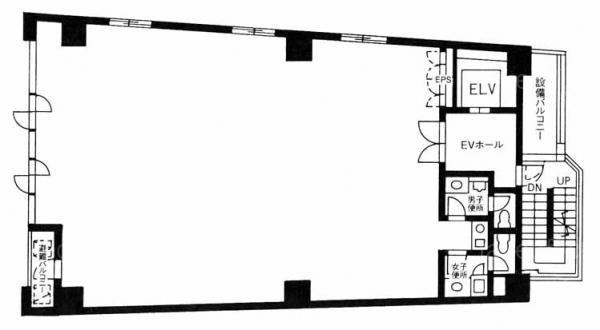
天井高 2600mm 基準階面積 46.04坪(152.2m2)
コンセント容量 - 施工会社

最新の募集状況や類似物件については、
こちらにお問い合わせください。

恵比寿オークビレッジビル 外観

外観

内見やお見積りなどの各種お問い合わせ

全物件
仲介手数料無料
仲介から
入居工事まで
ワンストップで対応
経験豊富なスタッフが
スピード感をもって
対応

周辺での似た条件の物件

非公開物件 多数あり!

お問い合わせフォーム