takeofficeなら掲載物件の仲介手数料は無料です

グリュック代官山

住所 東京都渋谷区恵比寿西2-11-12
交通 JR山手線恵比寿」 徒歩5分
東横線代官山」 徒歩7分
竣工 1993年04月 構造 RC
規模 地上6階 耐震基準 新耐震基準
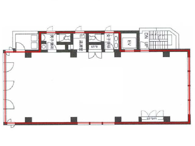
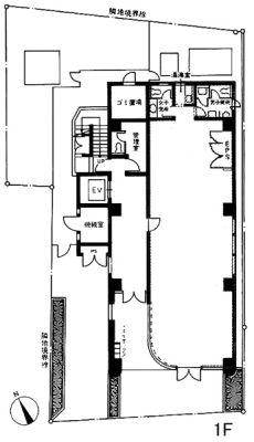
床構造 フリーアクセス 50mm 空調設備 個別空調
天井高 2500mm 基準階面積 61.57坪(203.54m2)
コンセント容量 - 施工会社

最新の募集状況や類似物件については、
こちらにお問い合わせください。

グリュック代官山 外観

外観

内見やお見積りなどの各種お問い合わせ

全物件
仲介手数料無料
仲介から
入居工事まで
ワンストップで対応
経験豊富なスタッフが
スピード感をもって
対応

周辺での似た条件の物件

非公開物件 多数あり!

お問い合わせフォーム