takeofficeなら掲載物件の仲介手数料は無料です

恵比寿OTビル

住所 東京都渋谷区恵比寿南2-1-8
交通 東京メトロ日比谷線恵比寿」 徒歩1分
JR山手線恵比寿」 徒歩3分
竣工 1988年03月 構造 SRC
規模 地上8階 耐震基準 新耐震基準
床構造 フリーアクセス 空調設備 個別空調
天井高 2400mm 基準階面積 30.33坪(100.26m2)
コンセント容量 - 施工会社

最新の募集状況や類似物件については、
こちらにお問い合わせください。

恵比寿OTビル 外観

外観

  • 恵比寿OTビル エントランス写真

    エントランス

  • 基準階(3~6F)

    基準階(3~6F)

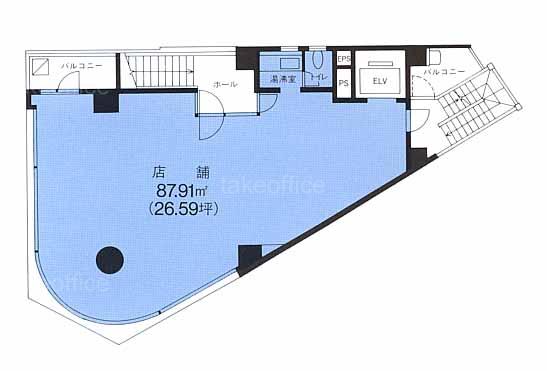
  • 1F

    1F

  • 2F

    2F

内見やお見積りなどの各種お問い合わせ

全物件
仲介手数料無料
仲介から
入居工事まで
ワンストップで対応
経験豊富なスタッフが
スピード感をもって
対応

周辺での似た条件の物件

非公開物件 多数あり!

お問い合わせフォーム