takeofficeなら掲載物件の仲介手数料は無料です

いちご恵比寿グリーングラス

住所 東京都渋谷区恵比寿南3-1-1
交通 東京メトロ日比谷線恵比寿」 徒歩2分
JR山手線恵比寿」 徒歩4分
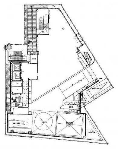
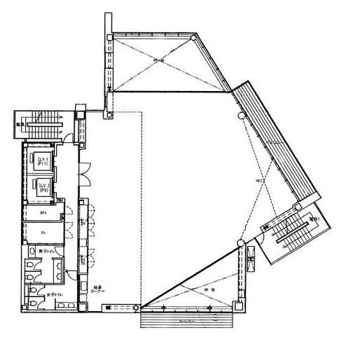
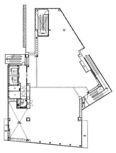
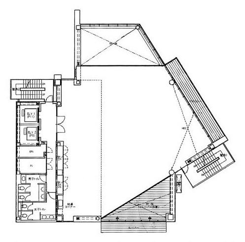
竣工 2009年09月 構造 鉄骨造
規模 地上9階, 地下1階 耐震基準 新耐震基準
床構造 フリーアクセス 100mm 空調設備 個別空調
天井高 2650mm 基準階面積 125.48坪(414.81m2)
コンセント容量 60VA/m2 施工会社

最新の募集状況や類似物件については、
こちらにお問い合わせください。

いちご恵比寿グリーングラス 外観

外観

内見やお見積りなどの各種お問い合わせ

全物件
仲介手数料無料
仲介から
入居工事まで
ワンストップで対応
経験豊富なスタッフが
スピード感をもって
対応

周辺での似た条件の物件

非公開物件 多数あり!

お問い合わせフォーム