takeofficeなら掲載物件の仲介手数料は無料です

渋谷董友ビルannex

住所 東京都渋谷区渋谷1-4-11
交通 JR山手線渋谷」 徒歩5分
東京メトロ千代田線表参道」 徒歩10分
竣工 1974年06月 構造 SRC
規模 地上7階 耐震基準 旧耐震基準
床構造 フリーアクセス 29mm 空調設備 個別空調
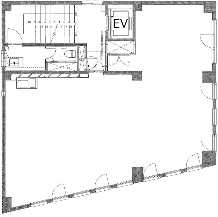
天井高 2400mm 基準階面積 29.7坪(98.18m2)
コンセント容量 - 施工会社

最新の募集状況や類似物件については、
こちらにお問い合わせください。

渋谷董友ビルannex 外観

外観

内見やお見積りなどの各種お問い合わせ

全物件
仲介手数料無料
仲介から
入居工事まで
ワンストップで対応
経験豊富なスタッフが
スピード感をもって
対応

周辺での似た条件の物件

非公開物件 多数あり!

お問い合わせフォーム