takeofficeなら掲載物件の仲介手数料は無料です

ICIビル

住所 東京都渋谷区渋谷1-6-7
交通 JR山手線渋谷」 徒歩4分
東京メトロ千代田線表参道」 徒歩9分
東京メトロ千代田線明治神宮前」 徒歩13分
竣工 1987年 月 構造 -
規模 地上7階, 地下1階 耐震基準 -
床構造 - 空調設備 個別空調
天井高 - 基準階面積 30坪(99m2)
コンセント容量 - 施工会社

最新の募集状況や類似物件については、
こちらにお問い合わせください。

ICIビル 外観

外観

  • ICIビル エントランス写真

    エントランス

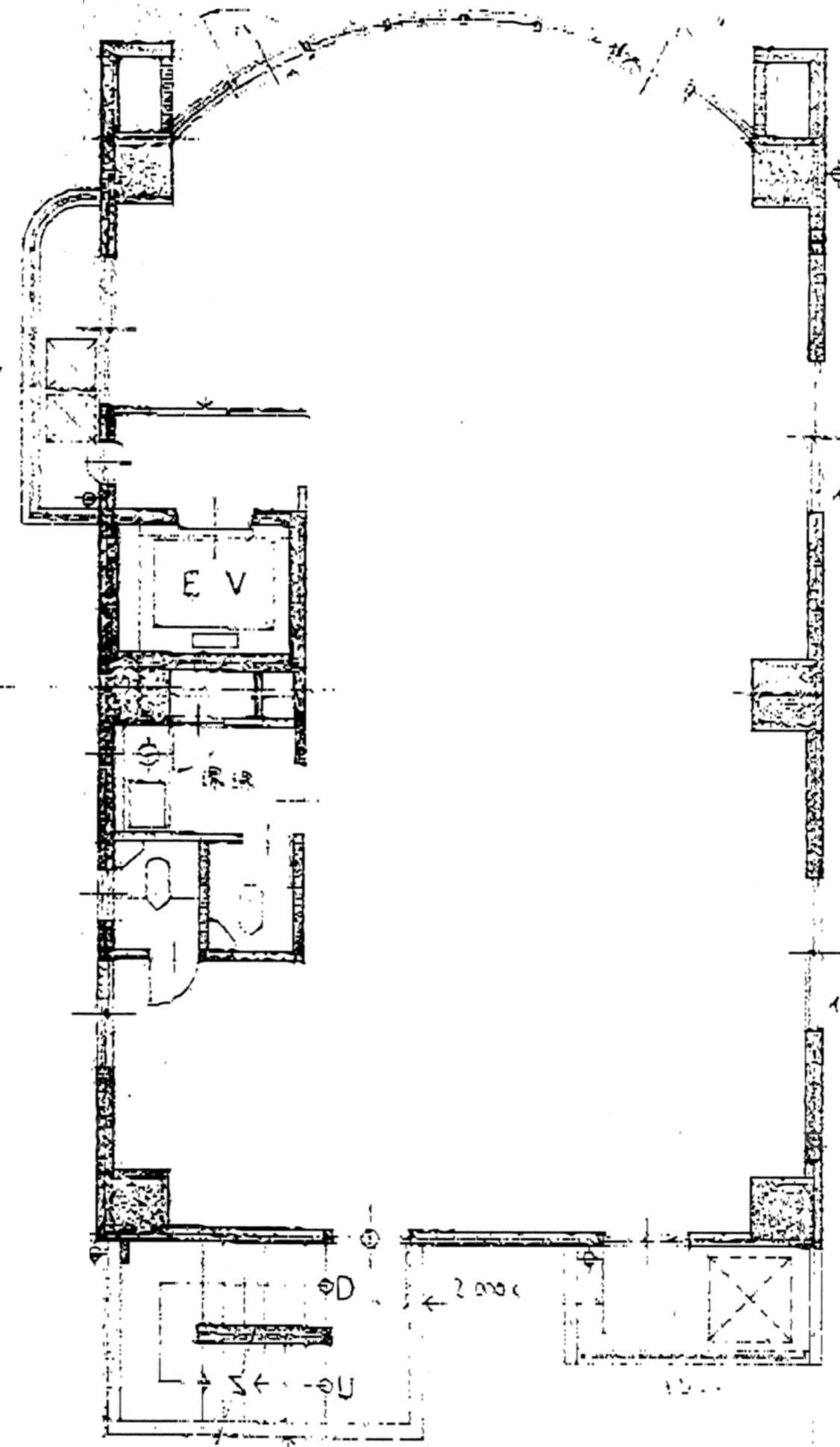
  • 基準階

    基準階

内見やお見積りなどの各種お問い合わせ

全物件
仲介手数料無料
仲介から
入居工事まで
ワンストップで対応
経験豊富なスタッフが
スピード感をもって
対応

周辺での似た条件の物件

非公開物件 多数あり!

お問い合わせフォーム