takeofficeなら掲載物件の仲介手数料は無料です

渋谷井上ビル

住所 東京都渋谷区渋谷1-6-8
交通 JR山手線渋谷」 徒歩5分
竣工 1984年04月 構造 鉄骨造
規模 地上5階, 地下1階 耐震基準 新耐震基準
床構造 - 空調設備 個別空調
天井高 2400mm 基準階面積 49.87坪(164.86m2)
コンセント容量 - 施工会社

最新の募集状況や類似物件については、
こちらにお問い合わせください。

渋谷井上ビル 外観

外観

  • 渋谷井上ビル エントランス写真

    エントランス

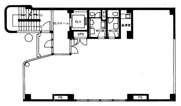
  • 基準階(3~5F)

    基準階(3~5F)

  • 1F

    1F

  • 2F

    2F

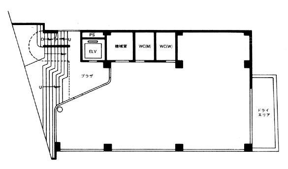
  • B1F

    B1F

内見やお見積りなどの各種お問い合わせ

全物件
仲介手数料無料
仲介から
入居工事まで
ワンストップで対応
経験豊富なスタッフが
スピード感をもって
対応

周辺での似た条件の物件

非公開物件 多数あり!

お問い合わせフォーム