takeofficeなら掲載物件の仲介手数料は無料です

渋谷S-6ビル

住所 東京都渋谷区渋谷1-7-1
交通 JR山手線渋谷」 徒歩6分
東京メトロ半蔵門線渋谷」 徒歩6分
東横線渋谷」 徒歩6分
竣工 1992年01月 構造 SRC
規模 地上9階, 地下1階 耐震基準 新耐震基準
床構造 フリーアクセス 50mm 空調設備 個別空調
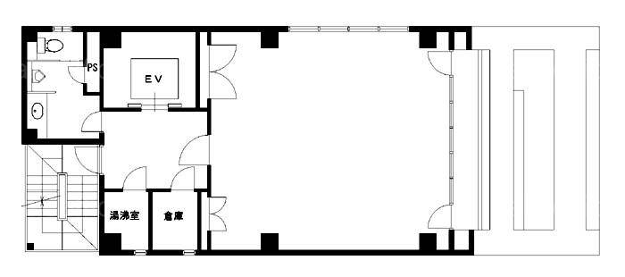
天井高 2500mm 基準階面積 31.54坪(104.26m2)
コンセント容量 50VA/m2 施工会社

最新の募集状況や類似物件については、
こちらにお問い合わせください。

渋谷S-6ビル 外観

外観

内見やお見積りなどの各種お問い合わせ

全物件
仲介手数料無料
仲介から
入居工事まで
ワンストップで対応
経験豊富なスタッフが
スピード感をもって
対応

周辺での似た条件の物件

非公開物件 多数あり!

お問い合わせフォーム