takeofficeなら掲載物件の仲介手数料は無料です

宮城ビル

住所 東京都渋谷区渋谷1-10-12
交通 JR山手線渋谷」 徒歩5分
東京メトロ銀座線渋谷」 徒歩5分
東横線渋谷」 徒歩5分
竣工 1990年04月 構造 SRC
規模 地上9階, 地下2階 耐震基準 新耐震基準
床構造 フリーアクセス 空調設備 個別空調
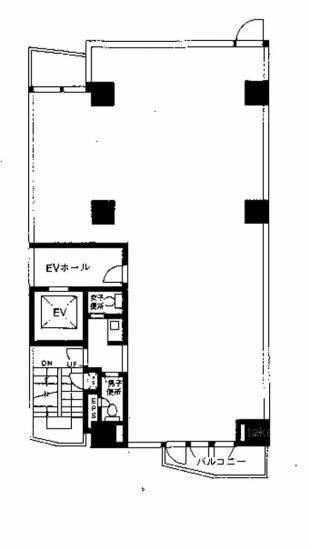
天井高 2460mm 基準階面積 34坪(113m2)
コンセント容量 - 施工会社

最新の募集状況や類似物件については、
こちらにお問い合わせください。

宮城ビル 外観

外観

  • 宮城ビル エントランス写真

    エントランス

内見やお見積りなどの各種お問い合わせ

全物件
仲介手数料無料
仲介から
入居工事まで
ワンストップで対応
経験豊富なスタッフが
スピード感をもって
対応

周辺での似た条件の物件

非公開物件 多数あり!

お問い合わせフォーム