takeofficeなら掲載物件の仲介手数料は無料です

松岡渋谷ビル

住所 東京都渋谷区渋谷1-17-8
交通 東京メトロ半蔵門線渋谷」 徒歩4分
東京メトロ銀座線表参道」 徒歩11分
竣工 2000年02月 構造 SRC
規模 地上7階, 地下0階 耐震基準 新耐震基準
床構造 フリーアクセス 70mm 空調設備 個別空調
天井高 2600mm 基準階面積 74.27坪(245.52m2)
コンセント容量 - 施工会社

最新の募集状況や類似物件については、
こちらにお問い合わせください。

松岡渋谷ビル 外観

外観

  • 松岡渋谷ビル エントランス写真

    エントランス

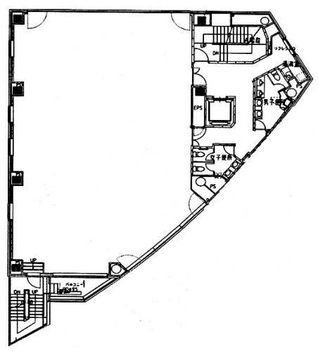
  • 基準階(2~6F)

    基準階(2~6F)

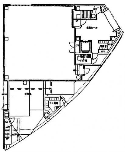
  • 1F

    1F

  • 7F

    7F

内見やお見積りなどの各種お問い合わせ

全物件
仲介手数料無料
仲介から
入居工事まで
ワンストップで対応
経験豊富なスタッフが
スピード感をもって
対応

周辺での似た条件の物件

非公開物件 多数あり!

お問い合わせフォーム