takeofficeなら掲載物件の仲介手数料は無料です

渋谷イーストプレイス

住所 東京都渋谷区渋谷2-6-4
交通 東京メトロ銀座線表参道」 徒歩8分
JR山手線渋谷」 徒歩9分
竣工 1989年01月 構造 RC
規模 地上6階 耐震基準 新耐震基準
床構造 フリーアクセス 50mm 空調設備 個別空調
天井高 2350mm 基準階面積 52.33坪(172.99m2)
コンセント容量 - 施工会社 東急建設

最新の募集状況や類似物件については、
こちらにお問い合わせください。

渋谷イーストプレイス 外観

外観

  • 渋谷イーストプレイス エントランス写真

    エントランス

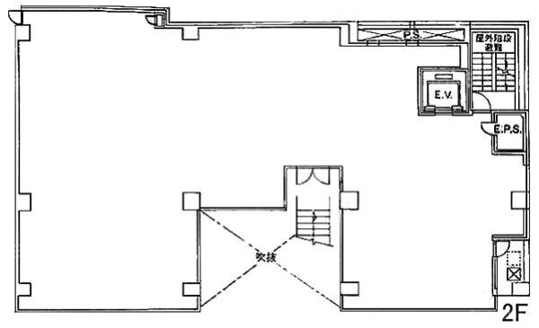
  • 2F

    2F

  • 3F

    3F

  • 4F

    4F

  • 5F

    5F

  • 6F

    6F

内見やお見積りなどの各種お問い合わせ

全物件
仲介手数料無料
仲介から
入居工事まで
ワンストップで対応
経験豊富なスタッフが
スピード感をもって
対応

周辺での似た条件の物件

非公開物件 多数あり!

お問い合わせフォーム