takeofficeなら掲載物件の仲介手数料は無料です

あいおいニッセイ同和損保渋谷ビル

住所 東京都渋谷区渋谷2-14-18
交通 JR山手線渋谷」 徒歩4分
東京メトロ半蔵門線渋谷」 徒歩3分
東横線渋谷」 徒歩4分
竣工 1979年02月 構造 SRC
規模 地上9階 耐震基準 新耐震基準
床構造 フリーアクセス 50mm 空調設備 個別空調
天井高 2500mm 基準階面積 86.97坪(287.5m2)
コンセント容量 - 施工会社

最新の募集状況や類似物件については、
こちらにお問い合わせください。

あいおいニッセイ同和損保渋谷ビル 外観

外観

  • あいおいニッセイ同和損保渋谷ビル エントランス写真

    エントランス

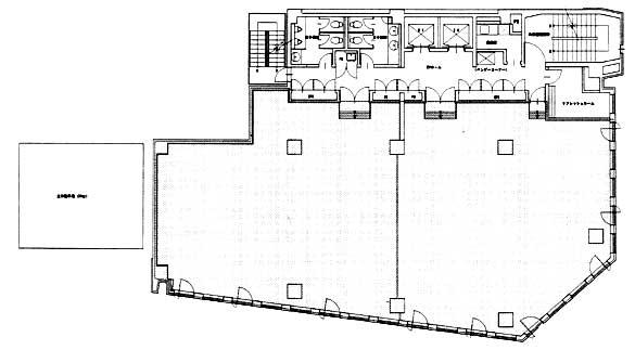
  • 基準階

    基準階

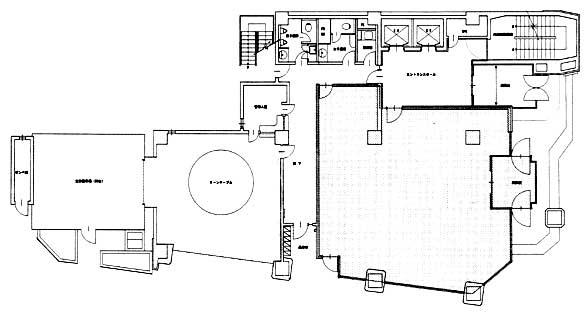
  • 1F

    1F

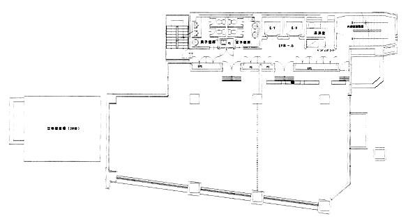
  • 2F

    2F

内見やお見積りなどの各種お問い合わせ

全物件
仲介手数料無料
仲介から
入居工事まで
ワンストップで対応
経験豊富なスタッフが
スピード感をもって
対応

周辺での似た条件の物件

非公開物件 多数あり!

お問い合わせフォーム