takeofficeなら掲載物件の仲介手数料は無料です

JS渋谷ビル

住所 東京都渋谷区渋谷3-8-10
交通 JR山手線渋谷」 徒歩4分
東京メトロ銀座線渋谷」 徒歩4分
東横線渋谷」 徒歩4分
竣工 1992年04月 構造 SRC
規模 地上9階, 地下1階 耐震基準 新耐震基準
床構造 フリーアクセス 100mm 空調設備 個別空調
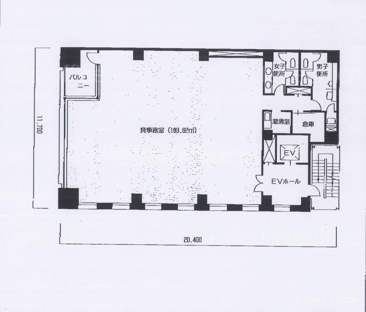
天井高 2400mm 基準階面積 58.63坪(193.82m2)
コンセント容量 - 施工会社

最新の募集状況や類似物件については、
こちらにお問い合わせください。

JS渋谷ビル 外観

外観

  • JS渋谷ビル エントランス写真

    エントランス

  • 基準階(4~9F)

    基準階(4~9F)

内見やお見積りなどの各種お問い合わせ

全物件
仲介手数料無料
仲介から
入居工事まで
ワンストップで対応
経験豊富なスタッフが
スピード感をもって
対応

周辺での似た条件の物件

非公開物件 多数あり!

お問い合わせフォーム