takeofficeなら掲載物件の仲介手数料は無料です

第2シバビル

住所 東京都渋谷区桜丘町27-2
交通 JR山手線渋谷」 徒歩5分
東京メトロ銀座線渋谷」 徒歩5分
東横線渋谷」 徒歩5分
竣工 1991年07月 構造 RC
規模 地上6階, 地下1階 耐震基準 新耐震基準
床構造 - 空調設備 個別空調
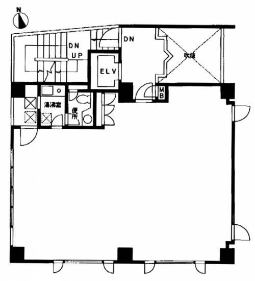
天井高 - 基準階面積 28.32坪(93.62m2)
コンセント容量 - 施工会社

最新の募集状況や類似物件については、
こちらにお問い合わせください。

第2シバビル 外観

外観

  • 第2シバビル エントランス写真

    エントランス

内見やお見積りなどの各種お問い合わせ

全物件
仲介手数料無料
仲介から
入居工事まで
ワンストップで対応
経験豊富なスタッフが
スピード感をもって
対応

周辺での似た条件の物件

非公開物件 多数あり!

お問い合わせフォーム