takeofficeなら掲載物件の仲介手数料は無料です

渋谷CHビル

住所 東京都渋谷区桜丘町29-12
交通 JR山手線渋谷」 徒歩6分
東京メトロ半蔵門線渋谷」 徒歩2分
東横線渋谷」 徒歩10分
竣工 1986年03月 構造 鉄骨造+RC
規模 地上3階 耐震基準 新耐震基準
床構造 フリーアクセス 50mm 空調設備 個別空調
天井高 2450mm 基準階面積 46.49坪(153.69m2)
コンセント容量 - 施工会社

最新の募集状況や類似物件については、
こちらにお問い合わせください。

渋谷CHビル 外観

外観

  • 渋谷CHビル エントランス写真

    エントランス

  • 3階

    3階

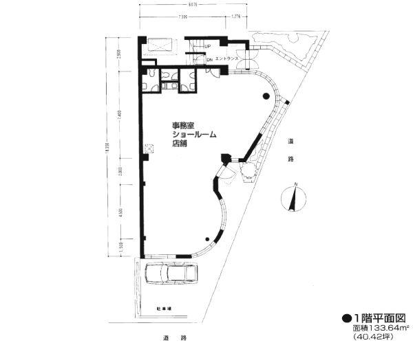
  • 1階

    1階

建物パンフレット

建物パンフレットは作成時点のものであり、また計画段階のものも含まれる為、実際とは異なる場合がございます。

内見やお見積りなどの各種お問い合わせ

全物件
仲介手数料無料
仲介から
入居工事まで
ワンストップで対応
経験豊富なスタッフが
スピード感をもって
対応

周辺での似た条件の物件

非公開物件 多数あり!

お問い合わせフォーム