takeofficeなら掲載物件の仲介手数料は無料です

第1シバビル

住所 東京都渋谷区南平台町13-3
交通 JR山手線渋谷」 徒歩10分
井の頭線神泉」 徒歩10分
竣工 1974年05月 構造 RC
規模 地上7階, 地下1階 耐震基準 旧耐震基準
床構造 - 空調設備 個別空調
天井高 2200mm 基準階面積 33.38坪(110.35m2)
コンセント容量 - 施工会社

最新の募集状況や類似物件については、
こちらにお問い合わせください。

第1シバビル 外観

外観

  • 第1シバビル エントランス写真

    エントランス

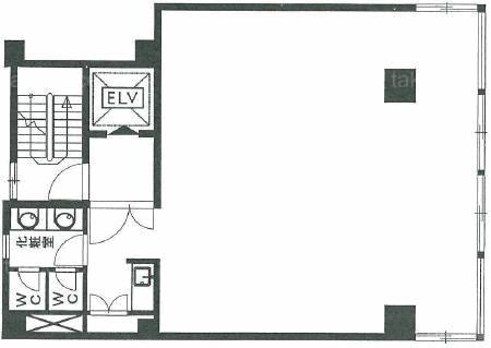
  • 4F

    4F

内見やお見積りなどの各種お問い合わせ

全物件
仲介手数料無料
仲介から
入居工事まで
ワンストップで対応
経験豊富なスタッフが
スピード感をもって
対応

周辺での似た条件の物件

非公開物件 多数あり!

お問い合わせフォーム