takeofficeなら掲載物件の仲介手数料は無料です

F93 Nanpeidai

住所 東京都渋谷区南平台町17-6
交通 井の頭線神泉」 徒歩9分
井の頭線渋谷」 徒歩10分
JR山手線渋谷」 徒歩11分
竣工 1993年07月 構造 RC
規模 地上5階, 地下1階 耐震基準 新耐震基準
床構造 フリーアクセス 空調設備 -
天井高 2500mm 基準階面積 51.19坪(169.22m2)
コンセント容量 - 施工会社

最新の募集状況や類似物件については、
こちらにお問い合わせください。

F93 Nanpeidai 外観

外観

  • F93 Nanpeidai エントランス写真

    エントランス

  • 2F

    2F

  • 1F

    1F

  • 3F

    3F

  • B1F

    B1F

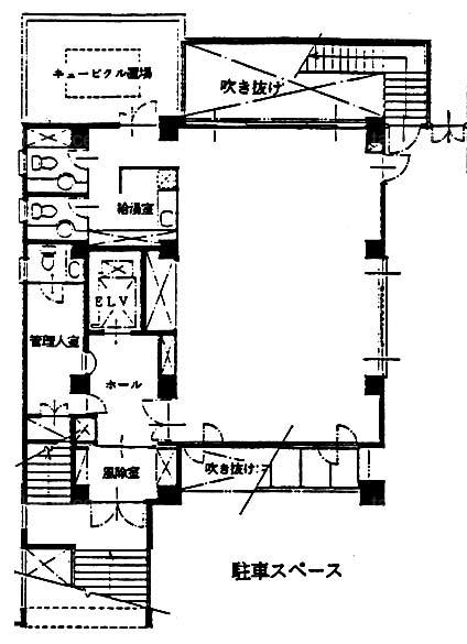
  • 4-5F

    4-5F

内見やお見積りなどの各種お問い合わせ

全物件
仲介手数料無料
仲介から
入居工事まで
ワンストップで対応
経験豊富なスタッフが
スピード感をもって
対応

周辺での似た条件の物件

非公開物件 多数あり!

お問い合わせフォーム