takeofficeなら掲載物件の仲介手数料は無料です

サウスゲート渋谷ビル(旧:IMAS渋谷1STビル)

住所 東京都渋谷区鶯谷町3-3
交通 JR山手線渋谷」 徒歩8分
東京メトロ銀座線渋谷」 徒歩8分
東横線渋谷」 徒歩8分
竣工 1989年12月 構造 RC
規模 地上8階, 地下2階 耐震基準 新耐震基準
床構造 フリーアクセス 50mm 空調設備 個別空調
天井高 2500mm 基準階面積 81.46坪(269.29m2)
コンセント容量 - 施工会社

最新の募集状況や類似物件については、
こちらにお問い合わせください。

サウスゲート渋谷ビル(旧:IMAS渋谷1STビル) 外観

外観

  • サウスゲート渋谷ビル(旧:IMAS渋谷1STビル) エントランス写真

    エントランス

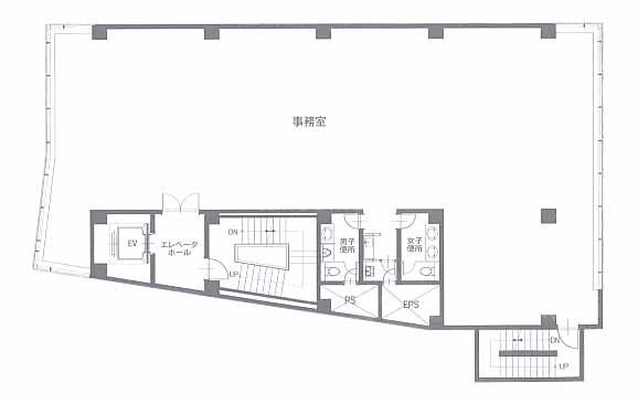
  • 基準階(2~3F)

    基準階(2~3F)

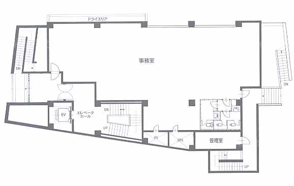
  • 1F

    1F

  • 4F

    4F

内見やお見積りなどの各種お問い合わせ

全物件
仲介手数料無料
仲介から
入居工事まで
ワンストップで対応
経験豊富なスタッフが
スピード感をもって
対応

周辺での似た条件の物件

非公開物件 多数あり!

お問い合わせフォーム