takeofficeなら掲載物件の仲介手数料は無料です

ニューアートビル

住所 東京都渋谷区神宮前5-30-3
交通 JR山手線渋谷」 徒歩6分
東京メトロ千代田線明治神宮前」 徒歩8分
JR山手線原宿」 徒歩11分
竣工 1982年 構造 RC
規模 地上7階 耐震基準 旧耐震基準
床構造 - 空調設備 個別空調
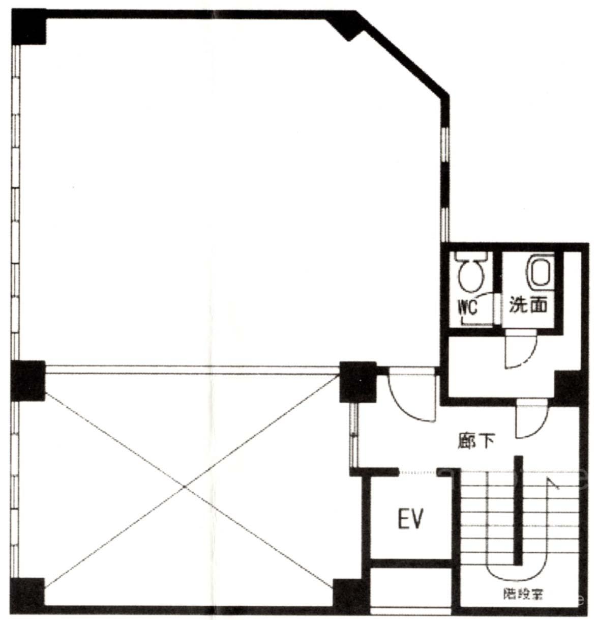
天井高 - 基準階面積 35坪(115m2)
コンセント容量 - 施工会社

最新の募集状況や類似物件については、
こちらにお問い合わせください。

ニューアートビル 外観

外観

  • NOW PRINTING

    エントランス

  • 6F

    6F

内見やお見積りなどの各種お問い合わせ

全物件
仲介手数料無料
仲介から
入居工事まで
ワンストップで対応
経験豊富なスタッフが
スピード感をもって
対応

周辺での似た条件の物件

非公開物件 多数あり!

お問い合わせフォーム