takeofficeなら掲載物件の仲介手数料は無料です

アンバービル

住所 東京都渋谷区神宮前5-38-15
交通 東京メトロ銀座線表参道」 徒歩6分
竣工 1992年04月 構造 RC
規模 地上5階, 地下0階 耐震基準 新耐震基準
床構造 フリーアクセス 空調設備 個別空調
天井高 - 基準階面積 61坪(202m2)
コンセント容量 - 施工会社

最新の募集状況や類似物件については、
こちらにお問い合わせください。

アンバービル 外観

外観

  • NOW PRINTING

    エントランス

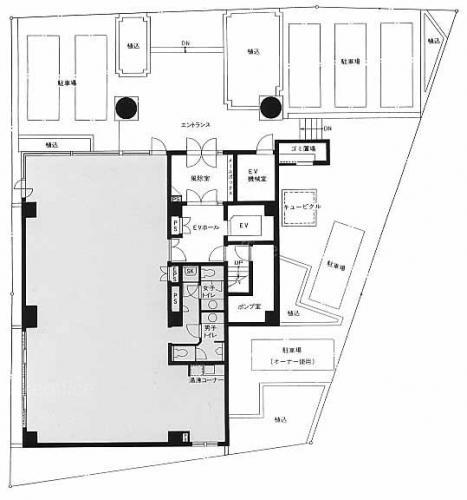
  • 基準階(2~4F)

    基準階(2~4F)

  • 1F

    1F

内見やお見積りなどの各種お問い合わせ

全物件
仲介手数料無料
仲介から
入居工事まで
ワンストップで対応
経験豊富なスタッフが
スピード感をもって
対応

周辺での似た条件の物件

非公開物件 多数あり!

お問い合わせフォーム