takeofficeなら掲載物件の仲介手数料は無料です

SS神宮前

住所 東京都渋谷区神宮前3-1-26
交通 東京メトロ銀座線外苑前」 徒歩6分
竣工 2008年01月 構造 RC
規模 地上6階 耐震基準 新耐震基準
床構造 フリーアクセス 30mm 空調設備 個別空調
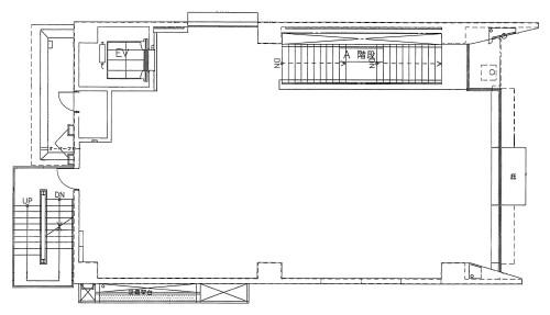
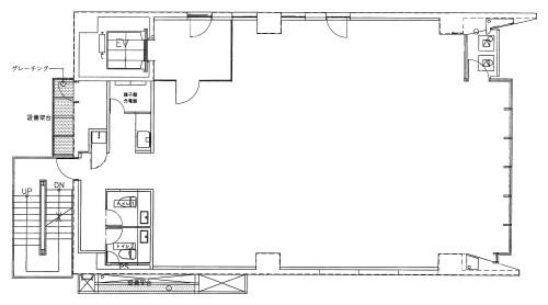
天井高 - 基準階面積 45.95坪(151.9m2)
コンセント容量 - 施工会社

最新の募集状況や類似物件については、
こちらにお問い合わせください。

SS神宮前 外観

外観

内見やお見積りなどの各種お問い合わせ

全物件
仲介手数料無料
仲介から
入居工事まで
ワンストップで対応
経験豊富なスタッフが
スピード感をもって
対応

周辺での似た条件の物件

非公開物件 多数あり!

お問い合わせフォーム