takeofficeなら掲載物件の仲介手数料は無料です

第2工業ビル

住所 東京都渋谷区神南1-10-7
交通 JR山手線渋谷」 徒歩5分
東横線渋谷」 徒歩5分
東京メトロ半蔵門線渋谷」 徒歩5分
竣工 1970年06月 構造 SRC
規模 地上9階, 地下0階 耐震基準 旧耐震基準
床構造 - 空調設備 個別空調
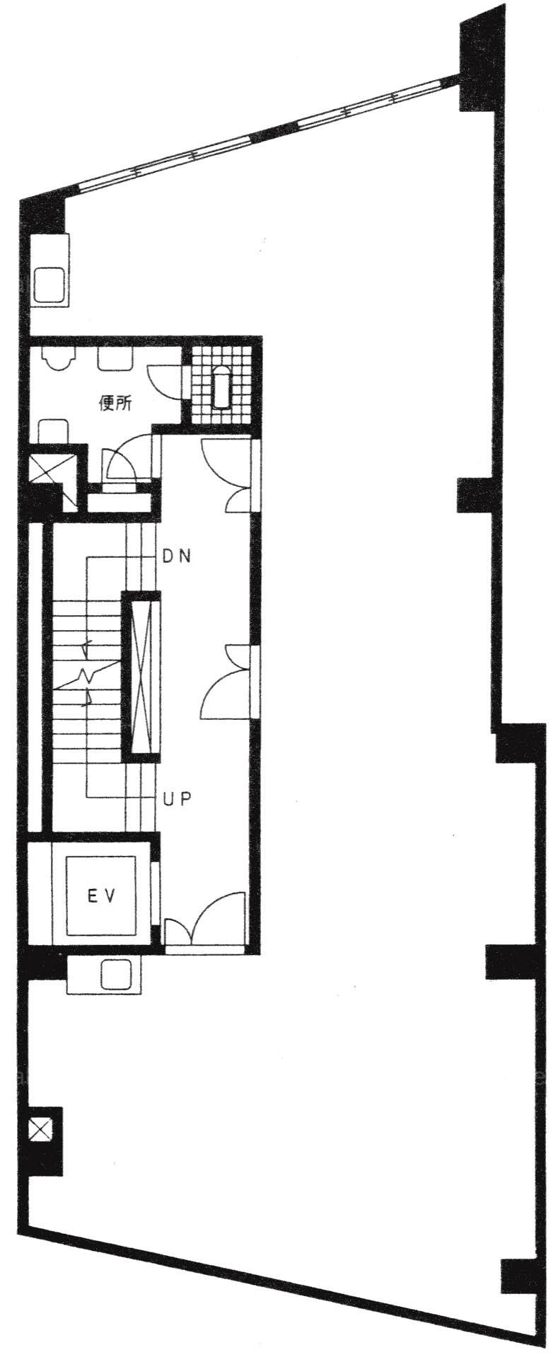
天井高 - 基準階面積 40坪(132.23m2)
コンセント容量 - 施工会社

最新の募集状況や類似物件については、
こちらにお問い合わせください。

第2工業ビル 外観

外観

  • 第2工業ビル エントランス写真

    エントランス

  • 4~8F

    4~8F

  • 基準階

    基準階

内見やお見積りなどの各種お問い合わせ

全物件
仲介手数料無料
仲介から
入居工事まで
ワンストップで対応
経験豊富なスタッフが
スピード感をもって
対応

周辺での似た条件の物件

非公開物件 多数あり!

お問い合わせフォーム