takeofficeなら掲載物件の仲介手数料は無料です

渋谷スクエアB

住所 東京都渋谷区道玄坂1-7-4
交通 JR山手線渋谷」 徒歩3分
東京メトロ半蔵門線渋谷」 徒歩3分
東横線渋谷」 徒歩3分
竣工 2004年03月 構造 SRC+RC
規模 地上5階, 地下1階 耐震基準 新耐震基準
床構造 フリーアクセス 100mm 空調設備 個別空調
天井高 2700mm 基準階面積 89.92坪(297.25m2)
コンセント容量 60VA/m2 施工会社 清水建設

最新の募集状況や類似物件については、
こちらにお問い合わせください。

渋谷スクエアB 外観

外観

  • 渋谷スクエアB エントランス写真

    エントランス

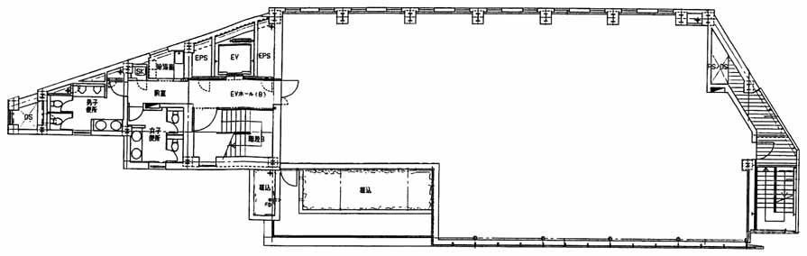
  • 基準階(3~4F)

    基準階(3~4F)

  • 1F

    1F

  • 4F

    4F

  • 5F

    5F

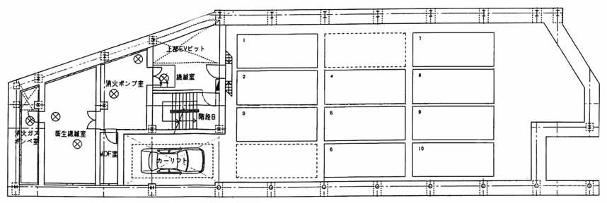
  • B1F

    B1F

建物パンフレット

建物パンフレットは作成時点のものであり、また計画段階のものも含まれる為、実際とは異なる場合がございます。

内見やお見積りなどの各種お問い合わせ

全物件
仲介手数料無料
仲介から
入居工事まで
ワンストップで対応
経験豊富なスタッフが
スピード感をもって
対応

周辺での似た条件の物件

非公開物件 多数あり!

お問い合わせフォーム