takeofficeなら掲載物件の仲介手数料は無料です

道玄坂今井ビル

住所 東京都渋谷区道玄坂1-19-12
交通 JR山手線渋谷」 徒歩8分
東横線渋谷」 徒歩8分
東京メトロ銀座線渋谷」 徒歩8分
竣工 2002年03月 構造 SRC
規模 地上10階 耐震基準 新耐震基準
床構造 フリーアクセス 80mm 空調設備 個別空調
天井高 2460mm 基準階面積 22.95坪(75.87m2)
コンセント容量 - 施工会社

最新の募集状況や類似物件については、
こちらにお問い合わせください。

道玄坂今井ビル 外観

外観

  • 道玄坂今井ビル エントランス写真

    エントランス

  • 基準階(3~7F)

    基準階(3~7F)

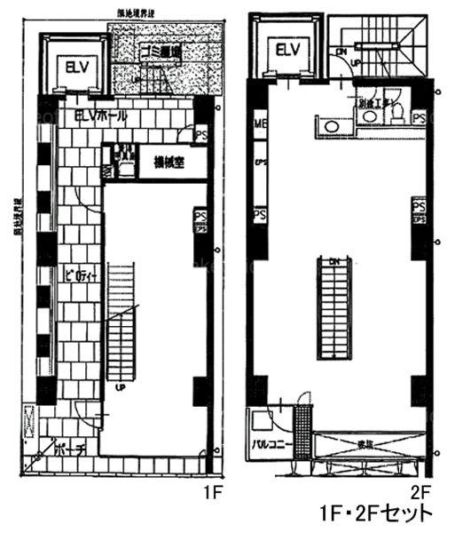
  • 1・2F

    1・2F

  • 7・8F

    7・8F

内見やお見積りなどの各種お問い合わせ

全物件
仲介手数料無料
仲介から
入居工事まで
ワンストップで対応
経験豊富なスタッフが
スピード感をもって
対応

周辺での似た条件の物件

非公開物件 多数あり!

お問い合わせフォーム