takeofficeなら掲載物件の仲介手数料は無料です

長島第1ビル

住所 東京都渋谷区道玄坂1-22-12
交通 井の頭線渋谷」 徒歩4分
JR山手線渋谷」 徒歩7分
竣工 1972年12月 構造 RC
規模 地上9階, 地下1階 耐震基準 旧耐震基準
床構造 - 空調設備 個別空調
天井高 - 基準階面積 38坪(125m2)
コンセント容量 - 施工会社

最新の募集状況や類似物件については、
こちらにお問い合わせください。

長島第1ビル 外観

外観

  • 長島第1ビル エントランス写真

    エントランス

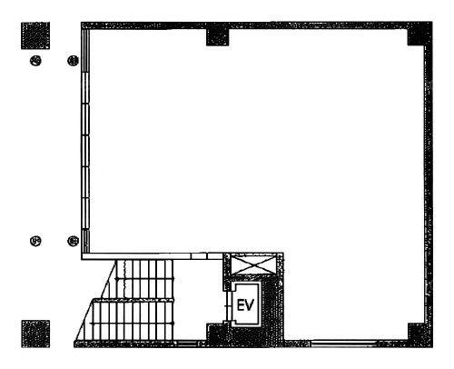
  • 基準階(3~7F)

    基準階(3~7F)

  • 1F

    1F

  • 2F

    2F

  • 8F

    8F

内見やお見積りなどの各種お問い合わせ

全物件
仲介手数料無料
仲介から
入居工事まで
ワンストップで対応
経験豊富なスタッフが
スピード感をもって
対応

周辺での似た条件の物件

非公開物件 多数あり!

お問い合わせフォーム