takeofficeなら掲載物件の仲介手数料は無料です

ジョワレ松濤

住所 東京都渋谷区松濤1-1-3
交通 JR山手線渋谷」 徒歩8分
井の頭線神泉」 徒歩10分
小田急線代々木八幡」 徒歩12分
竣工 1991年10月 構造 SRC
規模 地上8階, 地下1階 耐震基準 新耐震基準
床構造 フリーアクセス 空調設備 個別空調
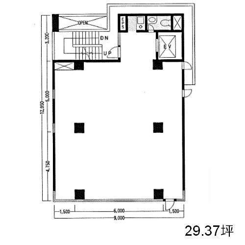
天井高 - 基準階面積 29.37坪(97.09m2)
コンセント容量 - 施工会社

最新の募集状況や類似物件については、
こちらにお問い合わせください。

ジョワレ松濤 外観

外観

  • ジョワレ松濤 エントランス写真

    エントランス

内見やお見積りなどの各種お問い合わせ

全物件
仲介手数料無料
仲介から
入居工事まで
ワンストップで対応
経験豊富なスタッフが
スピード感をもって
対応

周辺での似た条件の物件

非公開物件 多数あり!

お問い合わせフォーム