takeofficeなら掲載物件の仲介手数料は無料です

SKアネックス千駄ヶ谷

住所 東京都渋谷区千駄ヶ谷4-14-7
交通 JR総武本線千駄ヶ谷」 徒歩5分
JR山手線代々木」 徒歩7分
都営大江戸線国立競技場」 徒歩8分
竣工 1990年03月 構造 SRC
規模 地上3階 耐震基準 新耐震基準
床構造 - 空調設備 個別空調
天井高 2550mm 基準階面積 63坪(209m2)
コンセント容量 - 施工会社

最新の募集状況や類似物件については、
こちらにお問い合わせください。

SKアネックス千駄ヶ谷 外観

外観

  • SKアネックス千駄ヶ谷 エントランス写真

    エントランス

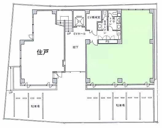
  • 2F

    2F

  • 1F

    1F

  • 3F

    3F

内見やお見積りなどの各種お問い合わせ

全物件
仲介手数料無料
仲介から
入居工事まで
ワンストップで対応
経験豊富なスタッフが
スピード感をもって
対応

周辺での似た条件の物件

非公開物件 多数あり!

お問い合わせフォーム