takeofficeなら掲載物件の仲介手数料は無料です

Kビル

住所 東京都渋谷区代々木1-32-11
交通 JR山手線代々木」 徒歩1分
都営大江戸線代々木」 徒歩1分
竣工 1989年12月 構造 RC
規模 地上8階, 地下1階 耐震基準 新耐震基準
床構造 フリーアクセス 空調設備 個別空調
天井高 - 基準階面積 42.22坪(139.57m2)
コンセント容量 - 施工会社

最新の募集状況や類似物件については、
こちらにお問い合わせください。

Kビル 外観

外観

  • Kビル エントランス写真

    エントランス

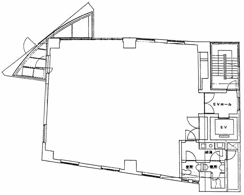
  • 基準階(3~7F)

    基準階(3~7F)

内見やお見積りなどの各種お問い合わせ

全物件
仲介手数料無料
仲介から
入居工事まで
ワンストップで対応
経験豊富なスタッフが
スピード感をもって
対応

周辺での似た条件の物件

非公開物件 多数あり!

お問い合わせフォーム