takeofficeなら掲載物件の仲介手数料は無料です

新宿GSビル

住所 東京都渋谷区代々木2-8-3
交通 JR山手線新宿」 徒歩2分
都営大江戸線新宿西口」 徒歩7分
小田急線南新宿」 徒歩8分
竣工 1979年05月 構造 SRC
規模 地上10階, 地下1階 耐震基準 旧耐震基準
床構造 - 空調設備 個別空調
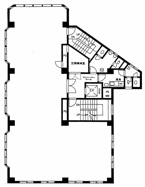
天井高 - 基準階面積 71坪(237m2)
コンセント容量 - 施工会社

最新の募集状況や類似物件については、
こちらにお問い合わせください。

新宿GSビル 外観

外観

  • NOW PRINTING

    エントランス

  • 基準階

    基準階

  • 1F

    1F

内見やお見積りなどの各種お問い合わせ

全物件
仲介手数料無料
仲介から
入居工事まで
ワンストップで対応
経験豊富なスタッフが
スピード感をもって
対応

周辺での似た条件の物件

非公開物件 多数あり!

お問い合わせフォーム