takeofficeなら掲載物件の仲介手数料は無料です

LARK YOYOGI

住所 東京都渋谷区代々木4-27-25
交通 京王線初台」 徒歩7分
小田急線参宮橋」 徒歩8分
JR山手線代々木」 徒歩18分
竣工 1974年06月 構造 SRC+RC
規模 地上8階, 地下1階 耐震基準 耐震診断書有
床構造 フリーアクセス 空調設備 個別空調
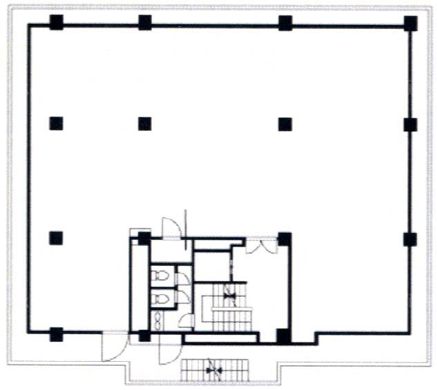
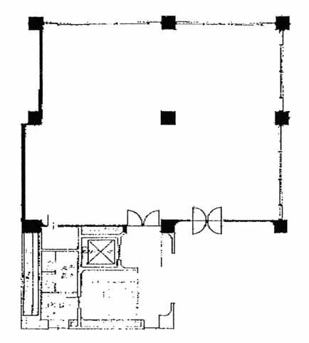
天井高 2650mm 基準階面積 92.82坪(306.84m2)
コンセント容量 - 施工会社

最新の募集状況や類似物件については、
こちらにお問い合わせください。

LARK YOYOGI 外観

外観

内見やお見積りなどの各種お問い合わせ

全物件
仲介手数料無料
仲介から
入居工事まで
ワンストップで対応
経験豊富なスタッフが
スピード感をもって
対応

周辺での似た条件の物件

非公開物件 多数あり!

お問い合わせフォーム