takeofficeなら掲載物件の仲介手数料は無料です

コニカミノルタヘルスケア元代々木ビル

住所 東京都渋谷区元代々木町31-12
交通 小田急線代々木八幡」 徒歩5分
東京メトロ千代田線代々木公園」 徒歩5分
竣工 1978年06月 構造 RC
規模 地上3階 耐震基準 旧耐震基準
床構造 - 空調設備 -
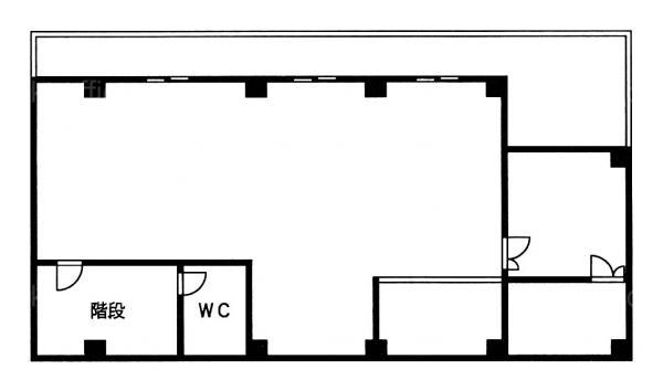
天井高 2400mm 基準階面積 51.43坪(170m2)
コンセント容量 - 施工会社

最新の募集状況や類似物件については、
こちらにお問い合わせください。

コニカミノルタヘルスケア元代々木ビル 外観

外観

  • NOW PRINTING

    エントランス

  • 2F

    2F

  • 1F

    1F

  • 3F

    3F

内見やお見積りなどの各種お問い合わせ

全物件
仲介手数料無料
仲介から
入居工事まで
ワンストップで対応
経験豊富なスタッフが
スピード感をもって
対応

周辺での似た条件の物件

非公開物件 多数あり!

お問い合わせフォーム