takeofficeなら掲載物件の仲介手数料は無料です

いちご中野ノースビル

住所 東京都中野区新井1-26-6
交通 JR総武本線中野」 徒歩10分
西武新宿線新井薬師前」 徒歩10分
竣工 1992年11月 構造 RC
規模 地上6階, 地下1階 耐震基準 新耐震基準
床構造 フリーアクセス 空調設備 個別空調
天井高 2550mm 基準階面積 74.7坪(246.94m2)
コンセント容量 - 施工会社

最新の募集状況や類似物件については、
こちらにお問い合わせください。

いちご中野ノースビル 外観

外観

  • いちご中野ノースビル エントランス写真

    エントランス

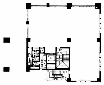
  • 基準階(5F)

    基準階(5F)

  • 1F

    1F

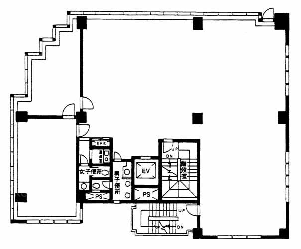
  • 2F

    2F

  • 6F

    6F

内見やお見積りなどの各種お問い合わせ

全物件
仲介手数料無料
仲介から
入居工事まで
ワンストップで対応
経験豊富なスタッフが
スピード感をもって
対応

周辺での似た条件の物件

非公開物件 多数あり!

お問い合わせフォーム