takeofficeなら掲載物件の仲介手数料は無料です

ハーモニーウイング

住所 東京都中野区本町1-32-4
交通 東京メトロ丸ノ内線中野坂上」 徒歩1分
都営大江戸線西新宿五丁目」 徒歩9分
東京メトロ丸ノ内線西新宿」 徒歩10分
竣工 1997年03月 構造 SRC
規模 地上6階, 地下1階 耐震基準 新耐震基準
床構造 フリーアクセス 空調設備 個別空調
天井高 2600mm 基準階面積 37.94坪(125.42m2)
コンセント容量 - 施工会社

最新の募集状況や類似物件については、
こちらにお問い合わせください。

ハーモニーウイング 外観

外観

  • ハーモニーウイング エントランス写真

    エントランス

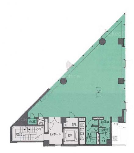
  • 基準階(3~6F)

    基準階(3~6F)

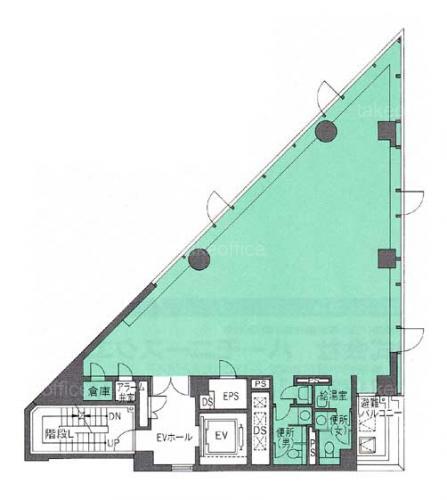
  • 1F

    1F

  • 2F

    2F

  • B1F

    B1F

建物パンフレット

建物パンフレットは作成時点のものであり、また計画段階のものも含まれる為、実際とは異なる場合がございます。

内見やお見積りなどの各種お問い合わせ

全物件
仲介手数料無料
仲介から
入居工事まで
ワンストップで対応
経験豊富なスタッフが
スピード感をもって
対応
非公開物件 多数あり!

お問い合わせフォーム