takeofficeなら掲載物件の仲介手数料は無料です

東ビル

住所 東京都中野区本町3-32-22
交通 東京メトロ丸ノ内線中野坂上」 徒歩6分
竣工 1992年07月 構造 鉄骨造
規模 地上7階, 地下0階 耐震基準 新耐震基準
床構造 - 空調設備 個別空調
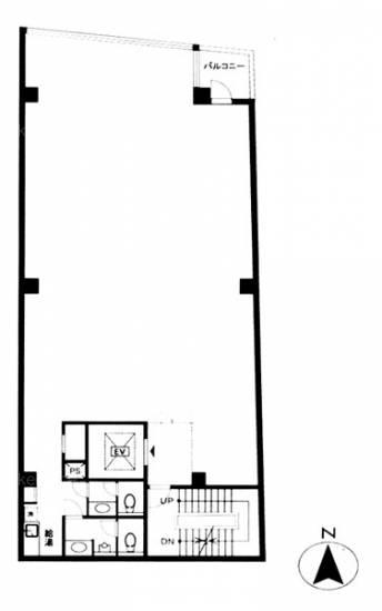
天井高 2500mm 基準階面積 47.86坪(158.21m2)
コンセント容量 - 施工会社

最新の募集状況や類似物件については、
こちらにお問い合わせください。

東ビル 外観

外観

  • NOW PRINTING

    エントランス

内見やお見積りなどの各種お問い合わせ

全物件
仲介手数料無料
仲介から
入居工事まで
ワンストップで対応
経験豊富なスタッフが
スピード感をもって
対応
非公開物件 多数あり!

お問い合わせフォーム