takeofficeなら掲載物件の仲介手数料は無料です

栗原ビルディング

住所 東京都中野区本町4-48-13
交通 東京メトロ丸ノ内線新中野」 徒歩1分
東京メトロ丸ノ内線2中野富士見町」 徒歩12分
竣工 1993年03月 構造 SRC+鉄骨造
規模 地上8階, 地下1階 耐震基準 新耐震基準
床構造 フリーアクセス 空調設備 個別空調
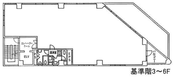
天井高 2530mm 基準階面積 52.41坪(173.26m2)
コンセント容量 - 施工会社

最新の募集状況や類似物件については、
こちらにお問い合わせください。

栗原ビルディング 外観

外観

  • 栗原ビルディング エントランス写真

    エントランス

内見やお見積りなどの各種お問い合わせ

全物件
仲介手数料無料
仲介から
入居工事まで
ワンストップで対応
経験豊富なスタッフが
スピード感をもって
対応

周辺での似た条件の物件

非公開物件 多数あり!

お問い合わせフォーム